Verkocht
Terug naar het overzicht

Prins Bernhardlaan 1

3901 CA Veenendaal
Vraagprijs: € 495.000,- k.k.

Omschrijving

klussers opgelet !

Realiseer jij hier jouw unieke grote stadswoning van maar liefst 280m² !!

Royaal multifunctioneel pand, dient volledig gemoderniseerd te worden

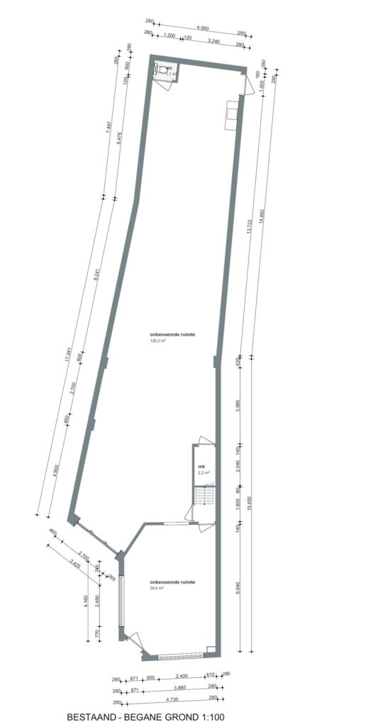
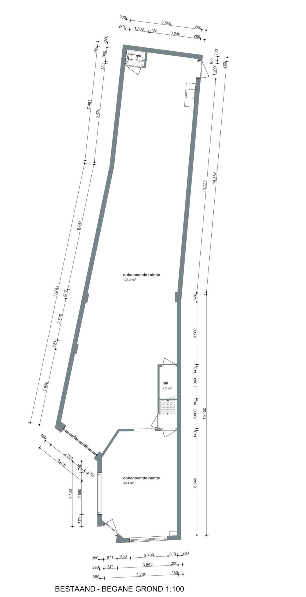
Op de begane grond heb je toegang via de voormalige winkelruimte aan 't Gelderland en er is een entree aan Prins Bernhardlaan 1.

Op de begane grond heb je circa 160 m² tot je beschikking. denk aan invulling als praktijkruimte, kantoor, showroom, galerie, hobbyruimte, fitness, wellness enz.
Op de begane grond is een toilet aanwezig en een eenvoudige pantry. Het pand is voorzien van een Intergas combiketel CW 5 voor warm water en verwarming.
onder de trap een trapkast met moderne electrische installatie.

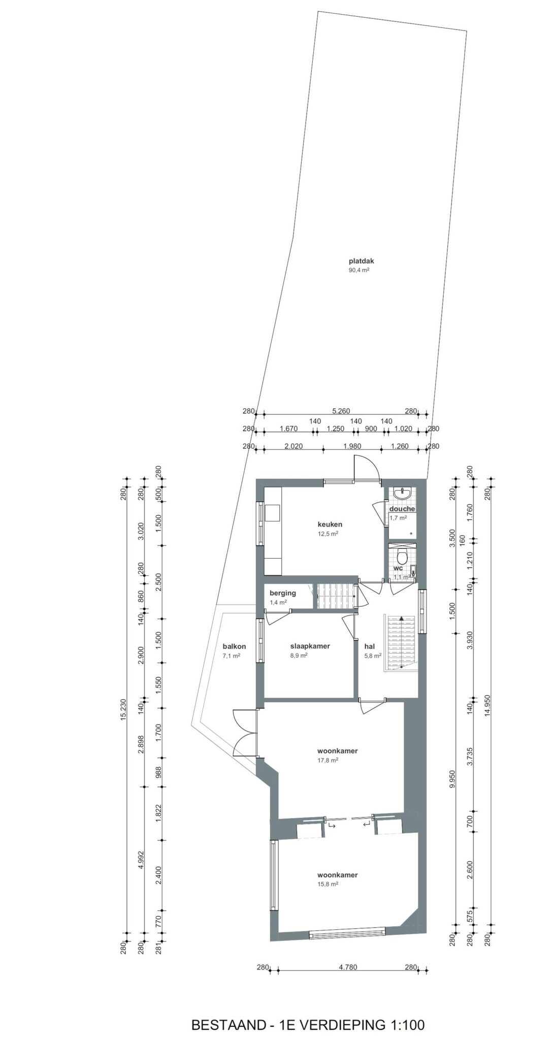
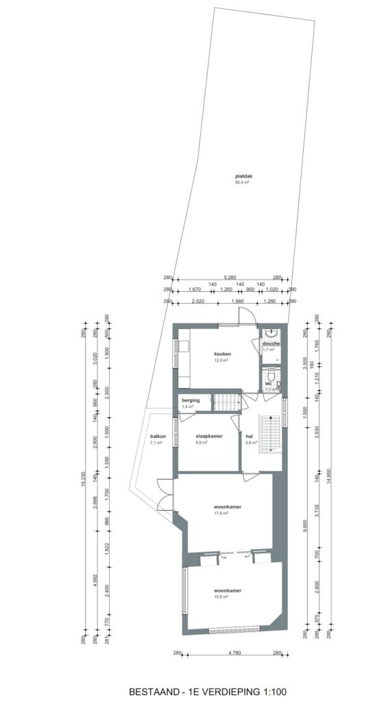
Afgesloten trappenhuis met brede trap naar 1e verdieping
Via de ruime lichte overloop heb je toegang tot het toilet. Dan is er aan de achterzijde een ruime keuken met een kleine sanitaire ruimte. Vanuit de keuken loop je het riante (nog aan te leggen) dakterras op.

Naast de keuken loop je langs de afgesloten trap naar de tweede verdieping. Daarnaast een slaapkamer/werkkamer van circa 10 m². Loop je verder naar de voorzijde dan bereik je een heerlijke kamer - en -suite met uitzicht op het levendige
Zwaaiplein. De openslaande deuren geven toegang tot een klein balkon.

Op de tweede verdieping treffen we één grote zolderruimte van circa 36 m² die je naar eigen idee kan indelen

Aanvaarding in overleg.

Ouderdomsclausule van toepassing
niet zelfbewoningsclausule van toepassing

Een heel project dus, gaan je handen al jeuken?

Neem contact op met ons kantoor voor een vrijblijvende bezichtiging.

Contact opnemen
Kenmerken
Type woning
Geschakelde woning
Bouwjaar
1930
Woonopp.
118 m2
Perceelopp.
231 m2
Aantal kamers
7
Slaapkamers
2
Energielabel
F
Erik van Dijk

Erik van Dijk

Makelaar wonen

Neem contact met ons op!

Kenmerken

Overdracht
Status
Verkocht
Vraagprijs
€ 495.000,-
Aanvaarding
In overleg
Bouwvorm
Soort object
Woonhuis
Soort
Herenhuis
Soort dak
Samengesteld dak
Type woning
Geschakelde woning
Bouwjaar
1930
Bouwvorm
Bestaande bouw
Ligging
Aan drukke weg, In centrum, In bosrijke omgeving
Oppervlaktes en inhoud
Woonoppervlakte
118 m2
Perceel oppervlakte
231 m2
Externe bergruimte
0 m2
Inhoud
900 m3
Aantal kamers
7
Aantal slaapkamers
2
Tuin
Tuinen
Geen tuin
Achterom
Nee
Schuur / Berging
Garage
Geen garage
Parkeer faciliteiten
Openbaar parkeren, Betaald parkeren, Parkeergarage
Voorzieningen
Voorzieningen
alarminstallatie, Rolluiken, TV kabel, Natuurlijke ventilatie
Onderhoud
Permanente bewoning
Ja
Onderhoud binnen
Slecht tot matig
Onderhoud buiten
Slecht tot matig
Huidig gebruik
Woonruimte
Huidige bestemming
Woonruimte
Energie
Energieklasse
F
Energie einddatum
1 januari 2026
Warmwater
CV ketel
Verwarming
CV ketel
Terug naar het overzicht