Terug naar het overzicht

Schoutenboomgaardweg 1D

3911 AG Rhenen
Vraagprijs: € 1.595.000,- k.k.

Omschrijving

Schoutenboomgaardweg 1 D te Rhenen.

Schitterende moderne villa, gebouwd in 2003 onder architectuur van Paul de Ruiter. De villa ligt op een unieke locatie aan een rustig straatje met uitzicht over de uiterwaarden en op loopafstand van alle voorzieningen in het centrum van Rhenen.

De woonkamer/keuken heeft als belangrijkste ruimte van het huis een lange glazen voorgevel om maximaal te profiteren van het uitzicht over de uiterwaarden. Midden in het huis is een lichtstraat gerealiseerd boven de centrale trap, deze zorgt voor lichtinval tot op de begane grond. Ook op de begane grond heb je vanuit de kamers veel contact met buiten door de grote raampartijen. Aan de voorzijde zorgen houten louvre-deuren voor privacy en zonwering.

Door de fraaie overstek is er een royale overdekte entree ontstaan.
De materialen aan de buitenzijde van deze villa zijn zo gekozen dat de woning uitstekend past in de omgeving; veel glas, hout en een sedumdak.
De voortuin is gesitueerd op het zuiden.

Het houtwerk aan de buitenzijde van de villa is aan vervanging toe.

Indeling:
Begane grond:
Overdekte entree, royale hal met garderobe, toilet, meterkast en toegang tot complete design badkamer. Midden in de woning is het centrale trappenhuis gesitueerd. Aan de voorzijde een werkkamer van ca. 21 m² en een hobbykamer van ca. 23 m². Aan de achterzijde bevinden zich twee slaapkamers van respectievelijk ca. 14 m² en ca. 13 m².

1e verdieping:
Overloop met toilet. Via glazen schuifdeuren bereik je de hoofdslaapkamer aan de achterzijde en aan de voorzijde heb je toegang tot de living met aansluitend een waanzinnig dakterras.
De living van ca. 60 m² bestaat uit een gezellige zithoek met openhaard en een luxe open keuken met werk/spoel-eiland. Je hebt vanuit de living een schitterend vrij uitzicht over de uiterwaarden naar de Rijn.
Op de vloer ligt een massief eiken parketvloer voorzien van vloerverwarming, de wanden zijn strak en licht afgewerkt. Via de schuifpui kom je op het grote terras van ca. 36 m², bij mooi weer een verlengstuk van de woonkamer.

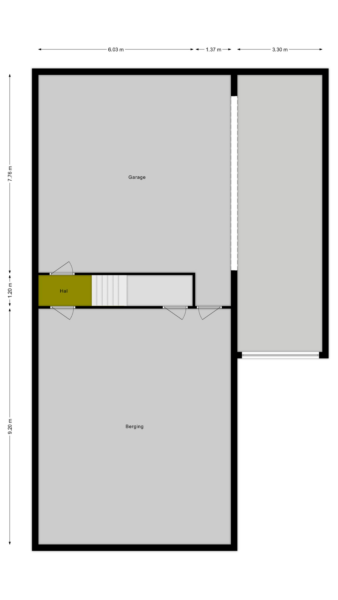
Kelder:
Deze multifunctionele kelder is via het trappenhuis van binnenuit bereikbaar maar ook van buitenaf met auto of fiets via de hellingbaan.
Deze enorme ruimte heeft vele mogelijkheden. Natuurlijk geschikt voor stalling van diverse auto's maar ook als speelruimte, fitness enz.
De totale oppervlakte van de kelder bedraagt ca. 170 m²!!

Sanitair:
Op de begane grond treffen we een separaat toilet en een complete badkamer met inloopdouche, ligbad en wastafelmeubel. Daarnaast is er een infra rood sauna aanwezig.
Op de eerste verdieping een separaat toilet en een badkamer met inloopdouche, een toilet, een bidet en wastafelmeubel.
De kleurstelling van het sanitair: witte tegels op de wand en antraciete tegels op de vloer.

Keuken:
In de open woonkeuken met werk/spoel-eiland heb je de beschikking over veel bergruimte. De keuken is uitgevoerd in een neutrale mat witte kleurstelling en een stoer hardstenen aanrechtblad. De keuken is voorzien van diverse inbouwapparatuur: een vaatwasser, een afzuigkap, een koel/vrieskast, een combi oven/magnetron en vier solitaire gasbranders in het aanrechtblad.

Hoofdslaapkamer:
Deze ruimte van ca. 45 m² !! is te bereiken via de glazen schuifdeur in de hal op de eerste verdieping. Het slaapvertrek van ca. 16 m² heeft een schuifpui met frans balkon. In de riante inloopkast is aansluiting voor wasmachine en droger opgenomen. De luxe badkamer maakt deze ruimte compleet.

Aanvaarding in overleg.

Je bent van harte welkom voor een bezichtiging, neem contact op met ons kantoor.

Contact opnemen
Kenmerken
Type woning
Vrijstaande woning
Bouwjaar
2003
Woonopp.
212 m2
Perceelopp.
680 m2
Aantal kamers
7
Slaapkamers
5
Energielabel
A
Erik van Dijk

Erik van Dijk

Makelaar wonen

Neem contact met ons op!

Kenmerken

Overdracht
Status
Beschikbaar
Vraagprijs
€ 1.595.000,-
Aanvaarding
In overleg
Bouwvorm
Soort object
Woonhuis
Soort
Villa
Soort dak
Samengesteld dak
Type woning
Vrijstaande woning
Bouwjaar
2003
Bouwvorm
Bestaande bouw
Ligging
Aan rustige weg, In centrum, Vrij uitzicht, In bosrijke omgeving
Oppervlaktes en inhoud
Woonoppervlakte
212 m2
Perceel oppervlakte
680 m2
Externe bergruimte
0 m2
Inhoud
1.200 m3
Aantal kamers
7
Aantal slaapkamers
5
Tuin
Tuinen
Tuin rondom
Hoofdtuin
Tuin rondom
Achterom
Ja
Kwaliteit
Verzorgd
Schuur / Berging
Schuur
Inpandig
Garage
Parkeerkelder
Parkeer faciliteiten
Op eigen terrein
Voorzieningen
Voorzieningen
Mechanische ventilatie, alarminstallatie, TV kabel, Buitenzonwering, Rookkanaal, Schuifpui, Glasvezel kabel
Onderhoud
Permanente bewoning
Ja
Onderhoud binnen
Goed
Onderhoud buiten
Goed
Huidig gebruik
Woonruimte
Huidige bestemming
Woonruimte
Energie
Energieklasse
A
Energie einddatum
1 mei 2035
Warmwater
CV ketel
Verwarming
CV ketel
Bouwjaar
2003
Gemeente
Gemeente
Rhenen
Terug naar het overzicht