Ruim en verzorgd wonen nabij het centrum van Veenendaal
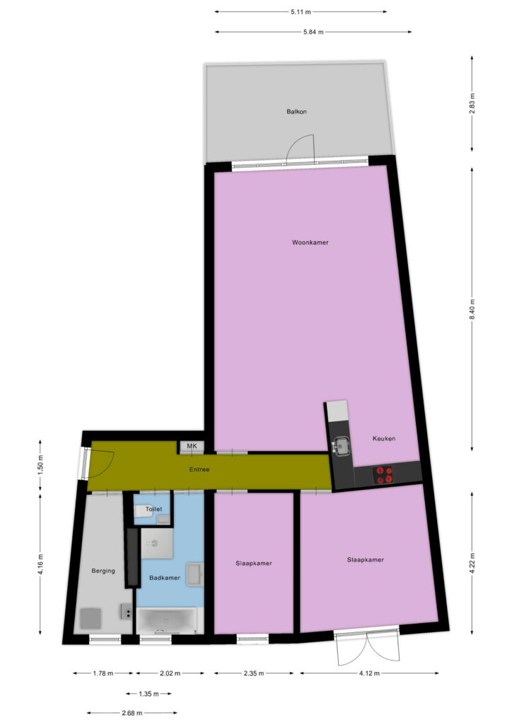
Ben jij op zoek naar een verzorgd appartement met veel ruimte en een fijne ligging? Sterrenwacht 35 in Veenendaal biedt alles wat je nodig hebt. Met een gebruiksoppervlak van ca. 103 m², 2 slaapkamers, een zonnig terras en een eigen berging en parkeerplaats in de afgesloten garage is dit een ideaal appartement voor jou.
Rustige ligging dicht bij het centrum
Je woont hier op loopafstand van het centrum van Veenendaal, met winkels, horeca en voorzieningen binnen handbereik. Ook het station en uitvalswegen zijn snel te bereiken, waardoor je enerzijds centraal maar anderzijds toch op een rustige plek woont.
Nette entree met lift
Het gebouw uit 2004 is goed onderhouden en voorzien van een gezamenlijke entree met videofoon. Via de lift of trap bereik je (ook vanuit de garage) eenvoudig de eerste woonlaag. Onder het complex ligt de afgesloten parkeergarage waar je een eigen berging en parkeerplek hebt voor de auto.
Binnenkomst met goede indruk
Het appartement verwelkomt je met een ruime hal waar plek is voor een garderobe. Vanuit hier heb je toegang tot de verschillende overige vertrekken.
Royale woonkamer met terras
De woonkamer is ruim en heeft veel lichtinval door een kamerbrede raampartij. Dankzij de ligging op het zuiden en het terras van circa 15 m² kun je volop genieten van de zon. Het terras is bovendien voorzien van zonwering waardoor het hier heerlijk vertoeven is en het binnen enigszins koel blijft.
Open keuken met inbouwapparatuur
De open keuken sluit mooi aan op de woonkamer en is praktisch ingericht. Je vindt hier o.a. een vaatwasser, koel-/vriescombinatie, combimagnetron en een gaskookplaat met vier pitten.
Twee slaapkamers
Het appartement beschikt over twee slaapkamers die beide goed bruikbaar zijn als slaapruimte of werkplek. De kamers zijn respectievelijk ca. 17 m² en ca. 10 m² groot, waarvan de grootste is voorzien van een “Frans-balkon” met openslaande deuren.
Verzorgde badkamer met ligbad en douche
De badkamer is uitgerust met een o.a. een ligbad, een aparte douchecabine en een wastafel met meubel. Alles wat je nodig hebt voor een goede start van de dag. Het toilet vind je in een separate ruimte naast de badkamer.
Handige bergruimte
Naast de beide slaapkamers is er ook nog een praktische inpandige berging van ca. 7 m² aanwezig met de Cv-opstelling (Nefit, plaatsingsjaar 2025) en de aansluitingen voor de wasmachine en -droger. Daarnaast beschik je over een externe berging van ca. 6,5 m², ideaal voor fietsen of extra opslag.
Comfort en duurzaamheid
De woning is volledig geïsoleerd en heeft energielabel A. De Hr-ketel (2025) is nieuw en pas dit jaar geplaatst.
Parkeren
Onder het gebouw heb je de beschikking over een eigen parkeerplaats in de afgesloten parkeergarage. De deur hiervan wordt bediend middels een afstandsbediening.
Algemeen
· bouwjaar 2004
· op enkele minuten lopen van het centrum
· gebruiksoppervlak circa 103 m²
· royale woonkamer
· 2 slaapkamers en inpandige berging
· terras circa 15 m², gelegen op het zuiden
· videofoon
· hr-ketel 2025
· eigen berging en parkeerplek in afgesloten parkeerkelder
· garagedeur met afstandsbediening
· liftinstallatie (ook van en naar de garage)
· energielabel A
· servicekosten € 203,89 per maand
· actieve vereniging van eigenaars
- niet zelfbewoningsclausule van toepassing
Kom kijken!
Ben je nieuwsgierig geworden naar dit ruime appartement? Maak dan snel een afspraak met ons kantoor